Projelerimiz

Ahmet Paşa Sıbyen Mektebi

Açıklama

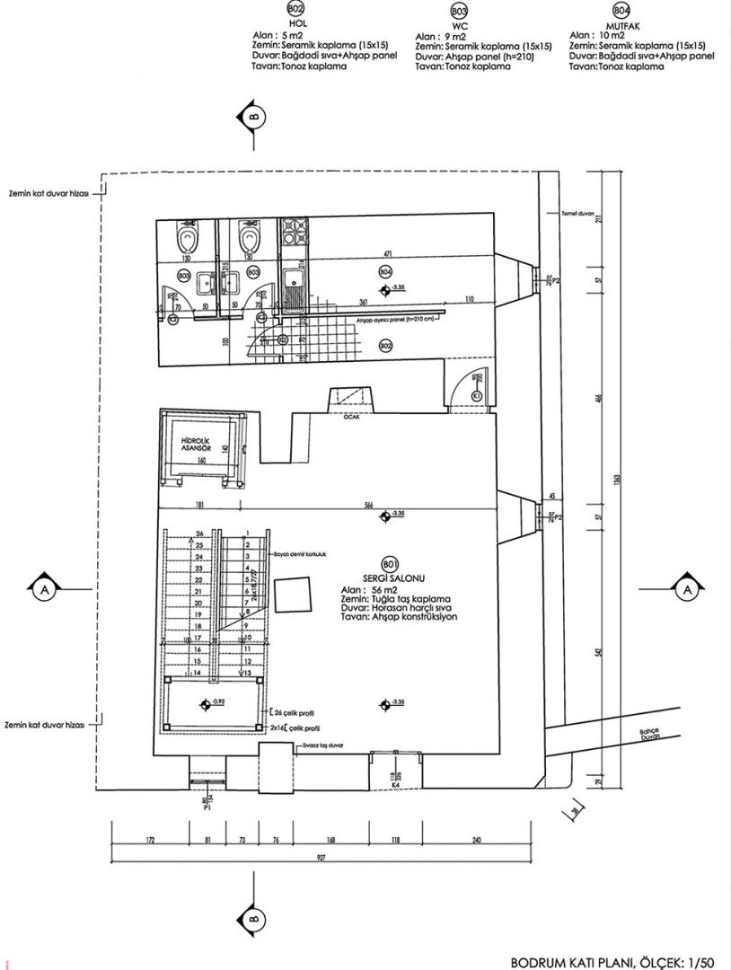
Sıbyan Mektebi'nin rölöve, restitüsyon ve restorasyon çalışmaları, sadece bir yapı üzerinde yapılan teknik işlemler değil, aynı zamanda geçmişle bugün arasında bir köprü kurma çabasıdır. Bu mektep, Fatih'in tarihi dokusunun önemli bir parçasını oluşturuyor ve bizler, bu yapının hikayesini ve mimari özelliklerini anlamak için titiz bir çalışma yürütüyoruz. Rölöve aşamasında, her bir taşın, her bir duvarın ve her bir pencerenin öyküsünü belgeliyoruz. Bu sayede, yapının mevcut durumu hakkında detaylı bir izlenim elde ediyoruz ve onun tarihsel kimliğini korumak için gerekli adımları atıyoruz.

Restorasyon aşamasında ise, elde edilen veriler doğrultusunda Sıbyan Mektebi'nin fiziksel olarak yenilenmesi sürecine geçiyoruz. Bu aşama, sadece yapının onarımı değil, aynı zamanda ona hayat verme çabasıdır. İki boyutlu çizimler, bu süreçte bize yol gösteriyor. Her bir çizim, hem mevcut halin hem de önerilen restorasyon planlarının görsel bir kaydını oluşturuyor. Böylece, yapının tarihi dokusuna zarar vermeden, ona yeni bir soluk kazandırmayı hedefliyoruz.

Sonuç olarak, Sıbyan Mektebi'nin korunması ve restorasyonu, geçmişin izlerini geleceğe taşımak adına büyük bir sorumluluk taşıyor. Bu süreçte yapılan her çizim, sadece bir teknik doküman değil, aynı zamanda kültürel mirasımıza sahip çıkma arzumuzun bir yansımasıdır. Bizler, geçmişle bağ kurarak, bu yapıyı gelecek nesillere aktaracak bir köprü inşa ediyoruz. Bu çalışmalar, tarihi yapıların korunmasında ve kültürel mirasın sürekliliğinde önemli bir rol oynuyor.

  • Proje Adı: Ahmet Paşa Sıbyen Mektebi
  • Proje Yeri: Fatih-İstanbul
  • Proje Tarihi: 2015
  • Kategoriler: Restorasyon
  • Etiketler: Restorasyon,
  • Paylaş:
Hotline
Hemen Ara

WhatsApp

M.o.n.s. Mimarlık
Merhaba, Size Nasıl Yardımcı Olabiliriz ?